Проект №97 Каркасный дом с детской и террасой 8х6

каркас из строганой доски
Создайте свой план для этого проекта
и отправьте его нам на расчет в один клик.
Каркасный дом (150 мм) 6х8 Толщина утепления 150 мм 1951100 Заказать
Каркасный дом (200 мм) 6х8 Толщина утепления 200 мм 2121100 Заказать

Пользуйтесь нашим планировщиком, чтобы адаптировать уже готовый проект и получить свою персональную планировку.

При помощи планировщика можно создавать схемы, чертежи, эскизы, планы дома с мансардой, эркером, с нужным количеством комнат. Вы сможете получить прекрасный проект, который отвечает вашим запросам.

При заказе постройки дома можно подобрать определенный вид крыши: двускатная, четырехскатная и вальмовая. Двухскатная считается особенно популярной у малометражных домов.

Востребованные размеры: мини - до 50м2 (как правило, 1-этажные); компактные - от 70 до 100м2 (обычно 2х этажные); большие постройки - от 150 квадратов и свыше.

Предлагаем дуплексы - большие каркасные дома с 2-мя входами на несколько семей. Дома строятся сразу для двух хозяев и разделяются на две части, каждая половина с отдельным входом.


Наши работы

Перейти в галерею


Комплектация

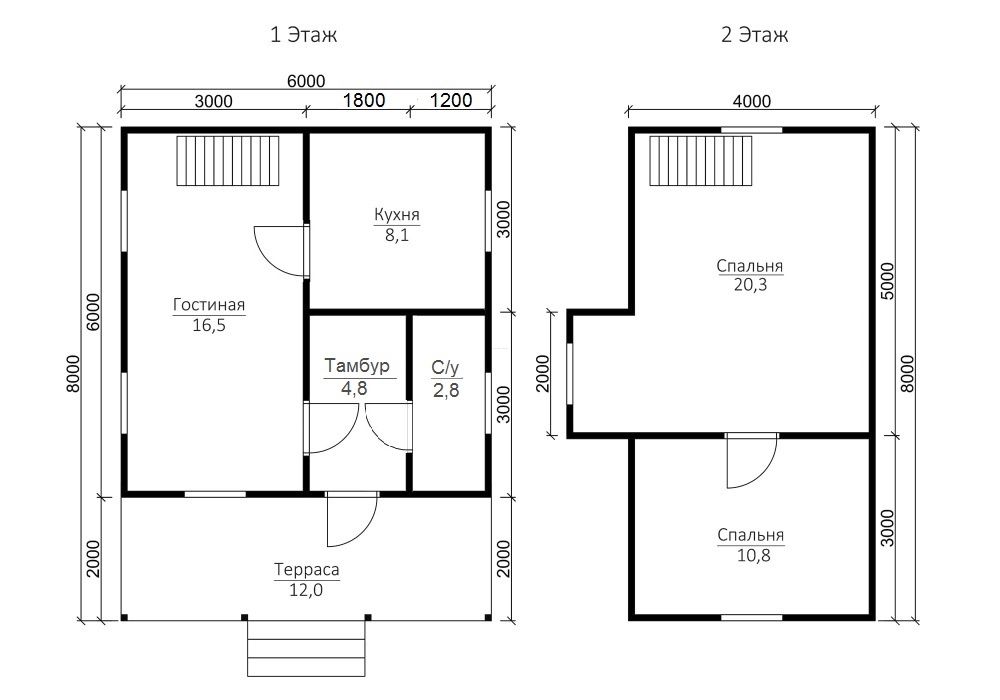
Площадь застройки: 48 м2
Длина: 8 м
Ширина: 6 м
Общая площадь: 65 м2
Исполнение Под ключ (с отделкой)
Фундамент Свайно-винтовой или ж/б сваи (рассчитываются отдельно).
Гидроизоляция фундамента Рубероид в два слоя.
Основание (обвязка) Из обрезного бруса 150х150 мм. 150х200 мм. согласно выбранной толщине утепления. Торцевая доска строганая 45х145/45х195+/-5 мм. согласно выбранной толщине утепления. Обработка антисептиком.
Цокольное перекрытие Строганая доска камерной сушки 45х145/45х195+/-5 мм. с шагом 590 мм. Обработка антисептиком.
Пол черновой Обрезная доска камерной сушки 20х100 мм.
Влаго-ветрозащита чернового пола Мембрана Ондутис А100.
Внешние стены Стойки каркаса из строганой доски камерной сушки 45х145/45х195+/-5 мм. с шагом 590 мм. Верхняя двойная и нижняя обвязки из строганой доски камерной сушки 45х145/45х195+/-5 мм. Разгрузочный ригель из строганой доски 45х145+/-5 мм. Укосины из строганой доски 20х95 мм.
Перегородки Стойки каркаса из строганой доски камерной сушки 45х95+/-5 мм. с шагом 590 мм. Верхняя двойная и нижняя обвязки из строганой доски 45х95+/-5 мм. Разгрузочный ригель из строганой доски камерной сушки 45х145+/-5 мм. Укосины из строганой доски камерной сушки 20х95 мм.
Сборка каркаса На гвозди.
Высота от пола до потолка Дом одноэтажный: 2,5 м. Дом с мансардой: 1-ый этаж- 2,5 м.
2-ой этаж (мансарда)- 2,3 м.
Дом в полтора и два этажа:
1-ый этаж 2,5 м.
2-ой этаж 2,4 м. в полутораэтажном доме
2,5 м. в двухэтажном доме.
Внешняя отделка стен Имитация бруса камерной сушки, сорт АВ, толщиной 17 мм. Монтаж через строганый брусок камерной сушки 45х45+/-5 мм. (вентилируемый фасад). Влаго-ветрозащитная мембрана- Ондутис А100.
Внутренняя отделка стен, перегородок Евровагонка камерной сушки, сорт АВ, толщиной 12,5 мм. по строганой рейке 20х40+/-5 мм. либо ГКЛ 12,5 мм.
Отделка потолка Евровагонка камерной сушки, сорт АВ толщиной, 12,5 мм. по строганой рейке 20х40+/-5 мм. либо ГКЛ 12,5 мм.
Пол чистовой Шпунтованная доска камерной сушки толщиной 35-36 мм. сорт АВ. по строганой рейке 20х40+/-5 мм. либо шпунтованная ДСП 16 мм. по разряженной обрешётке из строганой доски камерной сушки 20х95+/-5 мм.
Утепление (пол, потолок) Минеральная вата Knauf 150/200 мм. согласно выбранной толщине утепления.
Утепление стен Плитный утеплитель Rockwool, толщиной 150/200 мм. согласно выбранной толщине утепления.
Звукоизоляция перегородок Плитный утеплитель Rockwool, толщиной 100 мм.
Пароизоляция (стены, перегородки, пол, потолок) Плёнка Ондутис R70. Дополнительная герметизация нахлёстов/примыканий пароизоляционной плёнки клейкой лентой Delta.
Окна Двухкамерные стеклопакеты ПВХ белого цвета, профиль 60 мм. В комплекте: отливы, подоконники, москитные сетки.
Двери Входная- металлическая, утеплённая (Россия). Межкомнатные- филёнчатые.
Наличники на окна и двери Наличник деревянный, строганый, камерной сушки 70-90 мм. с двух сторон.
Лестница (при наличии второго этажа) Деревянная, одно или двухмаршевая. Перила- заводские резные, балясины- заводские точеные, устанавливаются стартовые точёные столбы. Ступени 40х200 мм. Тетива лестницы- 90х140 мм.
Крыша Двускатная, ломаная или вальмовая в соответствии с проектом.
Стропильная система Выполнена из строганой доски камерной сушки 45х145/45х195+/-5 мм. Шаг установки стропил 590 мм.
Обрешётка Выполняется из строганой доски камерной сушки толщиной 20х95+/-5 мм. Шаг крепления обрешетки 350 мм. Контробрешётка выполняется из строганого бруска камерной сушки 45х45+/-5 мм. Крепится по стропилам (вентиляционный зазор).
Подкровельная мембрана Ондутис А100
Кровельное покрытие (на выбор) Металлочерепица 0,45 мм. Цвет на выбор.
Фронтоны (при наличии) Каркас из строганой доски камерной сушки 45х145/45х195+/-5 мм. Обшиваются имитацией бруса камерной сушки, сорт АВ, толщиной 17 мм. Монтаж через строганый брусок камерной сушки 45х45+/-5 мм. (вентилируемый фасад). Влаго-ветрозащитная мембрана- Ондутис А100. Монтаж вентиляционных решёток.
Свесы крыши Ширина 400 мм. Подшиваются вагонкой камерной сушки, сорт АВ.
Терраса/балкон (при наличии) Устанавливаются опорные столбы из строганного бруса камерной сушки 140х140 мм.
Отделка потолка террасы/балкона Евровагонка камерной сушки толщиной 12,5 мм. сорт АВ.
Пол террасы/балкона Шпунтованная доска камерной сушки толщиной 35-36 мм. сорт АВ.
Ограждение террасы/балкона Перила- строганая доска. Балясины- точеные, фигурные. Либо ограждение в скандинавском стиле. Устанавливаются ступени у входа.
Допуск на геометрические параметры Составляет +/- 50 мм по длине с каждой стороны.
Допускается стыковка имитации бруса, вагонки и половой доски По всему периметру стен дома (если ширина и длина дома более 6,0 метров). Вагонки и доски пола в каждой отдельной комнате.
Допуски по имитации бруса, вагонке, доске +/- 5 мм.
В стоимость включена Доставка комплекта материала в радиусе 500 км. от г. Пестова Новгородской области и сборка дома на вашем участке.
Гарантия 5 лет.
Бытовка строительная 2,0х3,0 м. каркасно-щитовая. Стоимость 23000 руб. Остаётся на участке Заказчика.
Туалет 1,0х1,0 м. каркасно-щитовой. Стоимость 12000 руб. Остаётся на участке Заказчика.
Генератор Стоимость аренды на весь срок строительства 15000 руб. ГСМ за счёт Заказчика.

Строительство домов может выполняться в двух видах: под усадку, когда дом будет отстаиваться в течение некоторого времени и под ключ.

В холодное время года лучше всего строить в мороз, чтобы каркас не промок, в летнее время - не в дождливую.

Наиболее подходящими для сада или дачи считаются домики на винтовых сваях, у нас можно найти одноэтажные и полуторатажные виды домов.

В случае если дом будет строиться для ПМЖ (постоянного проживания), готовы предложить теплые и надежные одноэтажные и двухэтажные коттеджи и дома на плитных и ленточных фундаментах.

Имеется 2 размера утепления: 150 мм и 200 мм. Каркасные дома с толщиной утеплителя 200 мм получаются теплее, но несколько дороже.

Дополнительные услуги


Уютный светлый дом с большой террасой (6х8 м., 65 кв.м.), спроектированный компанией «Дача из бруса». Главное отличие проекта 97 – полутораэтажного каркасного дома с большой террасой – доступная цена, предлагаемая каждому клиенту компании, а также неизменные для изделий фирмы характеристики:

двускатная крыша надежно укрывает дом от солнца или дождя. Кровельное покрытие выполнено из зеленого, красного или коричневого ондулина. Все помещения имеют достаточное дневное освещение благодаря двойным зимним окнам, пропорционально и в необходимом количестве расположенным в каждой комнате.

Наши проекты значительно расширяют границы комфорта для своих владельцев, не обременяя бюджет непомерными расходами. Возможен выезд специалистов и строительство в Иваново.


Популярные проекты


Двухэтажные дома из бруса Каркасные дома Каркасные дома 6х5
хит продаж
Тип:
Общая площадь: 2
2479100
от 2361100
хит продаж
Тип: с балконом, с большой террасой
Общая площадь: 2
4495100
от 4281100
хит продаж
Тип: с балконом, с маленькой террасой
Общая площадь: 2
2216600
от 2111100
Дома из бруса

Заказать или задать вопрос




Дома из бруса в Иваново
Отзывы из Яндекс Карт
4.9
111 отзывов
Дополнительные услуги 88%
2 154 оценок
Комплектации 89%
1 535 оценок
Планировки 90%
2 484 оценок
Проекты 93%
2 231 оценок
С
Алиса Кондратьева01/16/2025 г.
С момента закладки фундамента и до внутренней отделки за процессом следил прораб, который всегда был на связи и подробно все объяснял.
Отзывы из Google Карт
4.8
67 отзывов
Дополнительные услуги 88%
2 154 оценок
Комплектации 89%
1 535 оценок
Планировки 90%
2 484 оценок
Проекты 93%
2 231 оценок
С
Тамара Корнеева04/14/2025 г.
В доме очень комфортная атмосфера — зимой тепло, летом прохладно, а стены из бруса создают особый микроклимат, который чувствуется сразу при входе.
Отзывы из 2гис
4.9
35 отзывов
Дополнительные услуги 88%
2 154 оценок
Комплектации 89%
1 535 оценок
Планировки 90%
2 484 оценок
Проекты 93%
2 231 оценок
С
Зинаида06/19/2025 г.
Искали компанию для строительства бани и остановились на "Брус дома". Ни разу не пожалели! Отличное соотношение цены и качества. Работали ребята быстро, несмотря на осеннюю погоду. Уже успели оценить баньку с друзьями — все в восторге, жар держит отлично. Спасибо за отлично проделанную работу.

Заказать или задать вопрос

Заказать звонок

Напишите нам
Здравствуйте! Отправьте нам вопрос или заявку в WhatsApp